Vous utilisez un navigateur Internet obsolète. Nous vous recommandons d'installer le dernier navigateur Internet pour un affichage optimal de ce site Web. Un navigateur Internet à jour garantit également une navigation sécurisée.
Mouscron Prix demandé: € 57.500

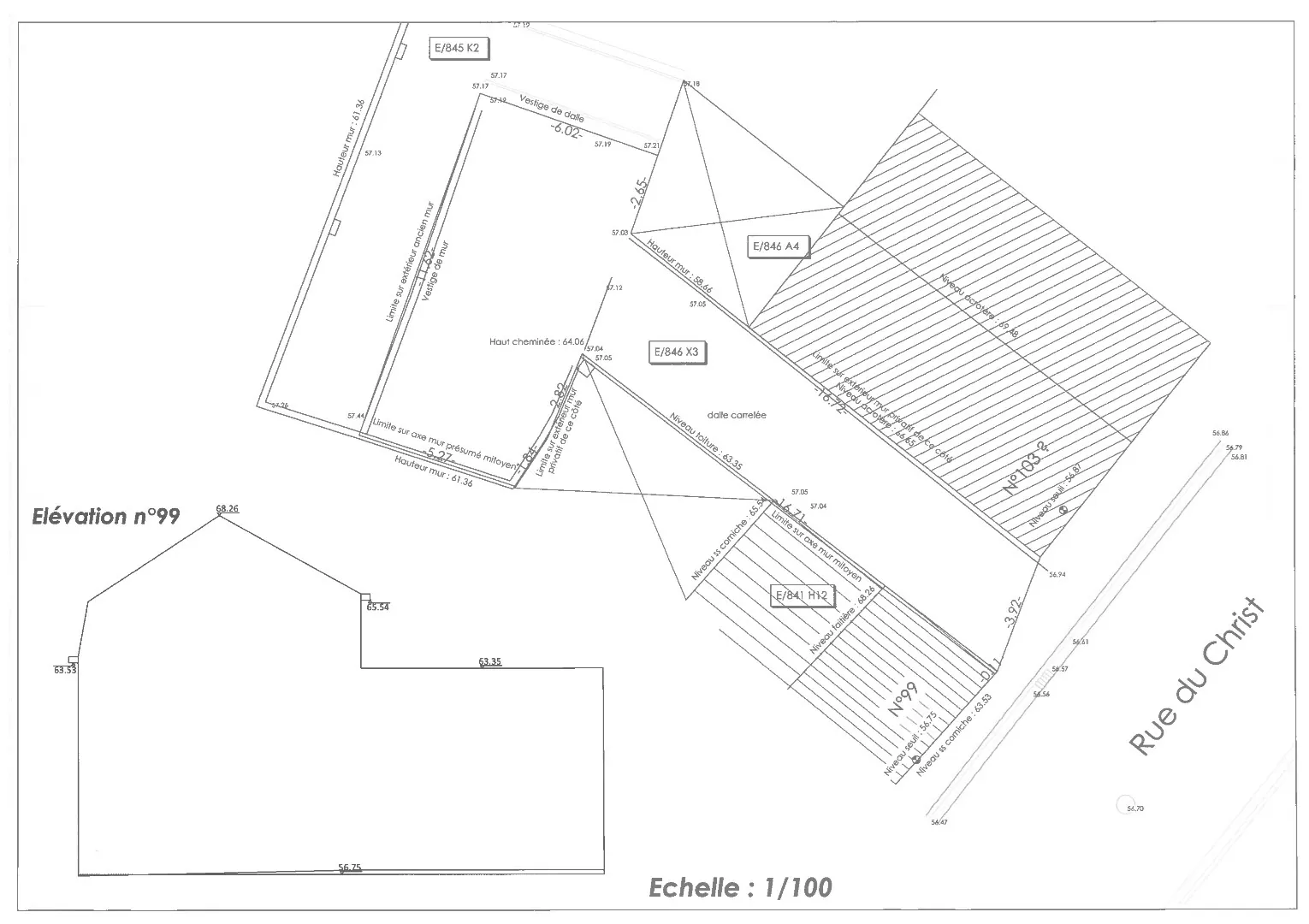
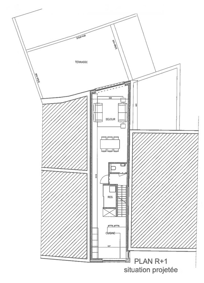
Terrain à bâtir de 131m² pour une construction mitoyenne, CENTRE-VILLE !

Description

Terrain à bâtir de 131m² situé dans le centre-ville de Mouscron, à proximité de la Grand-Place, du parc de Mouscron et de toutes commodités !

Plans d'architectes déjà réalisés pour la construction d'un immeuble de rapport composé d'une surface commerciale au rez-de-chaussée et d'un appartement "DUPLEX" deux ... chambres.

Idéal investisseurs,
Renseignements complémentaires et plans disponibles à l'agence !

Publicité à caractère non contractuel et ne constituant pas une offre.
Les propriétaires se réservent le droit de décision, d`acceptation ou non sur toute(s) offre(s) soumise(s) pour leur bien.
Lire plus Lire moins

Caractéristiques

Général

Adresse:Mouscron
Référence:CD/AV/0751
Prix demandé:€ 57.500
Type:Terrain
Disponible:à l'acte
Situation:Centre ville
Largeur parcelle:4 m
Profondeur parcelle:22 m
Type de constr.:Traditionnelle
Largeur façade:4 m

Données cadastrales

RC de base:€ 1
Section Cadastrale:Terrain à bâtir de 131m² pour une construction mitoyenne
Surface:131 m²

Obligation d'information

Sensible aux inondations:Pas annoncé
Zone inondable:Pas annoncé
Patrimoine protégé:Pas annoncé

Vous n'avez toujours pas trouvé la maison de vos rêves?

Inscrivez-vous et soyez les premiers à recevoir nos dernières offres.
Prochaine étape vers la maison de vos rêves
Inscrivez-vous Estimation en ligne
Retour en haut
Fermer Immo Léco